Zurück zu den Suchergebnissen

Ferienhaus

Verfügbar

Villa Porthos – Golf de Gascogne

€ 231.882
  • 73 m² / - m²

  • 3 Zimmer

  • 2 Schlafzimmer

Bel'Maison präsentiert die Villa Porthos, ein neues Projekt im Herzen der Biskaya in einer ruhigen und privilegierten Naturlandschaft.

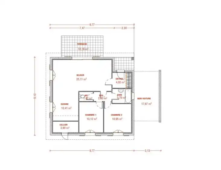
Diese einstöckige Villa bietet zwei Schlafzimmer mit etwa 10,12 m² und 10,95 m², ein modernes Badezimmer mit begehbarer Dusche sowie eine separate Toilette. Der Wohnraum besteht aus einem hellen Wohnzimmer von etwa 25,11 m², das zu einer Einbauküche mit 10,41 m² offen ist und so einen freundlichen und funktionalen Raum schafft.

Vom Wohnzimmer aus hat man direkten Zugang zu einer Terrasse von etwa 12,18 m², die ideal ist, um die Ruhe des Anwesens und die umliegende Natur zu genießen. Die Villa verfügt außerdem über einen eigenständigen Abstellraum von etwa 3,90 m², der sich für Lagerung und Geräte eignet, sowie über einen überdachten Carport mit etwa 17,87 m² Parkplatz.

Das Anwesen liegt in den Gers, im Herzen von Gascogne, und genießt einen Großteil des Jahres ein mildes und sonniges Klima. Die Region ist bekannt für ihre hügeligen Landschaften, authentische Dörfer, lokale Märkte und Gastronomie. Outdoor-Enthusiasten können Golf, Wandern, Radfahren und Naturaktivitäten genießen, während Toulouse und sein internationaler Flughafen etwa eine Stunde entfernt sind, ebenso wie die Pyrenäen und ihre Skigebiete und ganzjährige Aktivitäten bieten

Die Grundstücke 11 bis 15 sind diesem Villenmodell innerhalb des Anwesens gewidmet.

📩 Kontaktieren Sie uns für weitere Informationen über diese Grundstücke und das gesamte Projekt.

Maklergebühren werden vom Verkäufer bezahlt.

Informationen über die Risiken, denen diese Immobilie ausgesetzt ist, sind auf www.georisques.gouv.fr verfügbar.


Merkmale

Grunddaten

  • Angebotspreis € 231.882
  • Angebotspreis pro Quadratmeter € 3176,47
  • Angeboten seit 13 März 2026

Merkmale

  • Status Verkaufen
  • Dauerhaftes Wohnen Ja, teilweise
  • Vermietung erlaubt Ja, sowohl touristische Vermietung als auch Langzeitvermietung

Bau

  • Art der Konstruktion Neues Gebäude
  • Baujahr -
  • Dach 2 Hosen

Fläche und Volumen

  • Wohnfläche 73 m²
  • Grundstücksfläche -
  • Gebundene Außenfläche -
  • Externer Abstellraum/Schuppen -
  • Volumen 0 m³

Aufteilung

  • Anzahl der Zimmer 3
  • Anzahl der Schlafzimmer 2
  • Anzahl der Badezimmer 1
  • Anzahl der Stockwerke 0
  • Sanitäre Einrichtungen Toilette (1x)

Energie

  • Energieetikett Kein
  • Heizung Elektrisch
  • Heißes Wasser Kein

Parken

  • Parkmöglichkeit Überdachter Parkplatz
  • Kapazität 1 Auto

Lage & Außenbereich

Zugänglichkeit

  • Barrierefreiheit Ebenerdig

Lageplan

  • Villa_Porthos_-_Golf_de_Gascogne__d823.png Anzeigen
  • Villa_Porthos_-_Golf_de_Gascogne__c0dd.png Anzeigen

Standort

Der Verkäufer

Bel'Maison
Bel'Maison

Bel'Maison

Wohnhaft in Belgien Spricht die Sprachen Englisch, Französisch, Holländisch

Frage den Verkäufer


0x

Angesehen

0x

Als Favorit gespeichert

Fr 13-03-2026

Auf Micazu veröffentlicht


Bel'Maison
Bel'Maison

Bel'Maison

Wohnhaft in Belgien Spricht die Sprachen Englisch, Französisch, Holländisch
  • Direkter Kontakt zum Verkäufer
  • Keine Nutzungskosten für Käufer!
  • Zuverlässige Anzeigen
Geprüfte Verkäufer